The service apartment located in Qianjiang New City, Hangzhou was designed by PORTMAN COMPANIES. The commissioned interior design included sales office and two apartment showrooms.
The sales office is located at the apartment entrance on ground floor, where the future apartment lobby and Café are located as well. Temporary sales function is folded into a string of boxes, replacing conventional sand table and promotion pamphlets by using laser projection, AR and VR techniques. The sales office is located on the end of the box string.
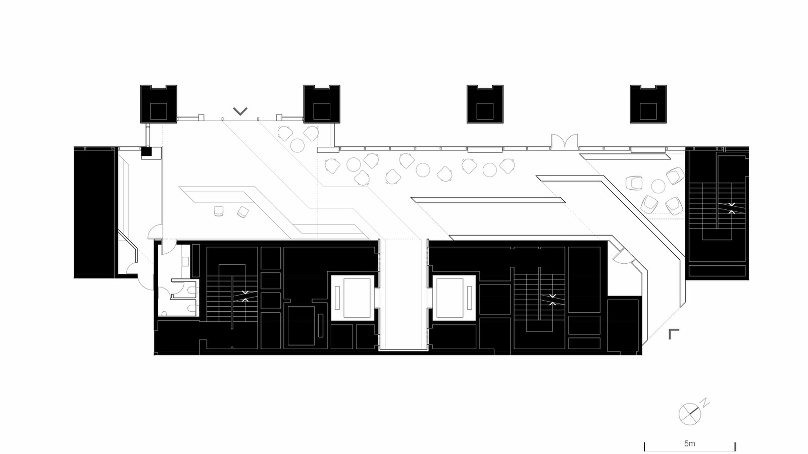
Originally designed for large-scaled offices, an apartment has an area more than 200 m². The client required two completely different styles of layout. Layout A1 consists of 3 suites with independent bathrooms and cloakrooms, which could be used as a sharing flat. Separable sharing areas included living room, study, tea room, dining room and kitchen. It could also be used as a generation apartment, accommodating more generations of a big family under one roof. The layout A2 is a business apartment, offering a multi-functional space for living, party and meeting in a nutshell. While the cross-shaped sharing space keeps as transparent as possible for meetings and reception, private rooms is established with tailored service areas like SPA terraces. The round image used in interior space was inspired by Portman design, for example, the interior design in living rooms corresponds harmoniously with the semi-circled overhang of the building.